Arsena architettura
HOME
Servizi
Studio
Il Network
Portfolio
Eventi
Media
Contatto
Arsena architettura
HOME
Servizi
Studio
Il Network
Portfolio
Eventi
Media
Contatto
HOME
Portfolio
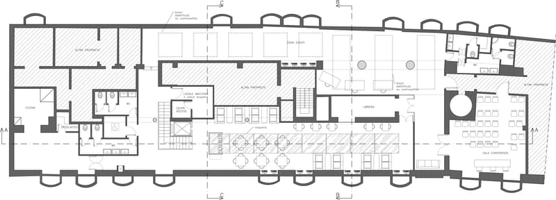
2005 - Locale Meet 'n Med, Campo Marzio - Roma
2005 - Locale Meet 'n Med, Campo Marzio - Roma
25/04/2024
Punto di ritrovo cultura mediterranea
disegni