Arsena architettura
HOME
Servizi
Studio
Il Network
Portfolio
Eventi
Media
Contatto
Arsena architettura
HOME
Servizi
Studio
Il Network
Portfolio
Eventi
Media
Contatto
HOME
Portfolio
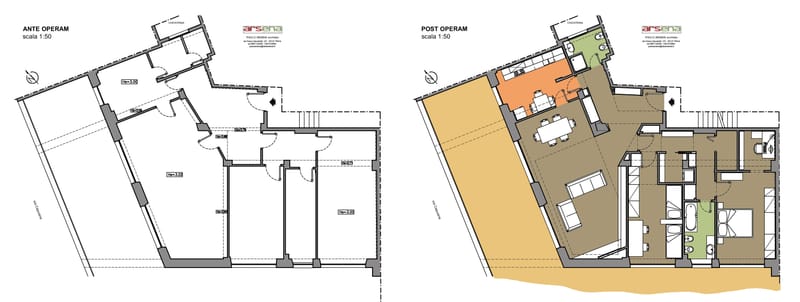
2021 - Appartamento, Talenti - Roma
2021 - Appartamento, Talenti - Roma
29/04/2024
.
planimetrie e disegni