Arsena architettura
HOME
Servizi
Studio
Il Network
Portfolio
Eventi
Media
Contatto
Arsena architettura
HOME
Servizi
Studio
Il Network
Portfolio
Eventi
Media
Contatto
HOME
Portfolio
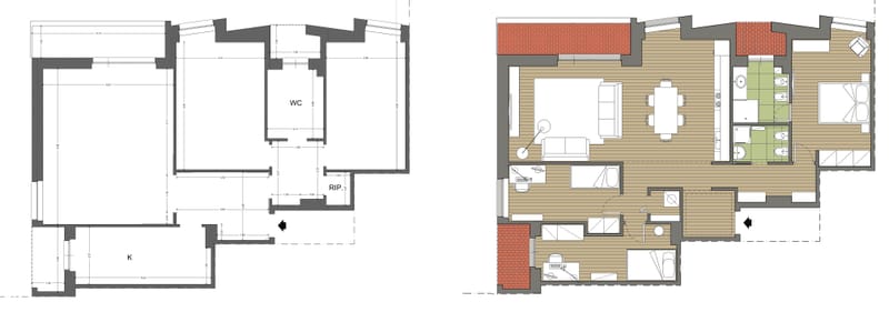
2023 - Appartamento, via Vanvitelli - Milano
2023 - Appartamento, via Vanvitelli - Milano
31/03/2025
.
ante e post operam